Freehold Investment

Block Of Flats in Northampton NN1

Northampton NN1 - Block Of Flats

£ 2,400,000

16 Bedroom 14 Bathrooms Bathroom 10,357 SqFt Sqft
Investment Northampton NN1

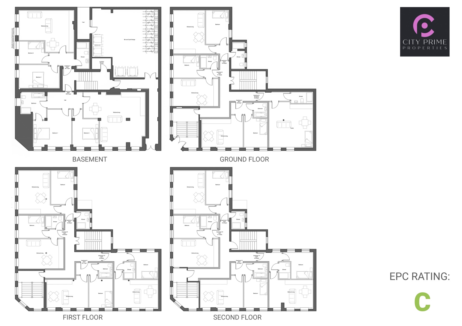
Freehold Block Of Flats - Residential Turn-Key Investment Opportunity A rare opportunity to secure a brand-new freehold block of 14 apartments in Northampton’s prime Boot and Shoe Quarter, extending to over 10,357 sq ft across four floors. This carefully executed conversion of a substantial former shoe factory delivers a high-quality residential scheme designed to appeal to both owner-occupiers and the rental market, offering strong long-term investment potential. Each apartment has been finished to an exceptional standard and designed with modern living in mind. Separate lease of 999 years. Allinson House is situated in the sought-after Boot and Shoe Quarter, within easy walking distance of Northampton Town Centre. Close to green spaces, parks, and historic landmarks Excellent local amenities, including supermarkets, cafés, pubs, and restaurants Strong transport connectivity for commuters Northampton Station approx. 0.8 miles London Euston approx 59 minutes Birmingham New Street approx 1 hour 4 minutes North Gate Bus Station approx. 1.5 miles

Features
  • Freehold Block Of Flats
  • 14 Flats
  • 12 x One Bedroom Flat
  • 2 x Two Bedroom Flat
  • Bicycle Room / Studio
  • Parking spaces
  • Contemporary Fully Equipped German-manufactured Kitchens
  • Luxury Bathrooms With Underfloor Heating
  • High Ceilings
  • Entry System
  • Solar Panels Providing Long-Term Energy Savings
  • App-Controlled Boilers
  • Cycle Storage (with potential to reconfigure for a large studio space)
  • Strong Rental Demand Location
  • Flooded With Natural Light
  • Open-plan Kitchen and Living Areas
  • Gross Internal Area 10,357 SqFt
  • 10-Year Warranty
  • Potential for Further Development or Alternative Use (STPP)
  • Separate Leases

Thank You For Your Enquiry

FILL IN YOUR DETAILS AND WE'LL BE IN TOUCH

    What is 7 x 5?


    logo

    City Prime Properties

    3rd Floor, 45 Albemarle Street, Mayfair, London, W1S 4JL
    Mob. 0786 317 2705 |   Tel. 0203 727 7977 |   E. cpp@cityprimeproperties.co.uk
    Designed by Webpristine Technologies